×
Wood Door and Window CAD Plans & Elevations- Free DWG
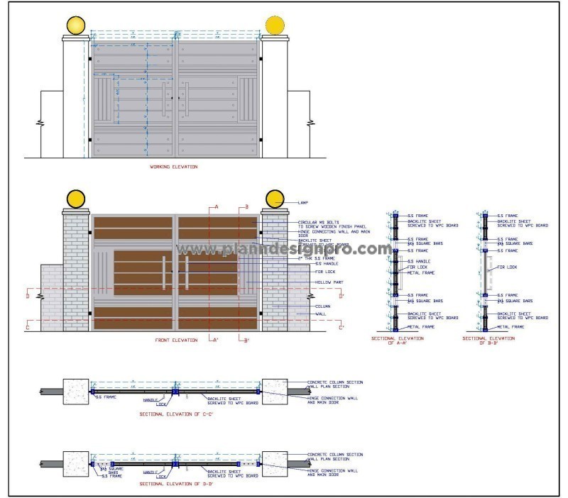
This free AutoCAD drawing provides detailed specifications for wood-framed doors and windows, including various sizes and types. It features detailed plans, elevations, frame profiles, and opening schedules. This comprehensive CAD resource is ideal for architects, designers, and builders working on residential and commercial projects, ensuring precise and efficient design and installation of wood door and window systems.
Product Details
| Category | Construction & Standard Details |
| Software | Autocad DWG |
| File ID | 1105 |
| Type | Free |
Related Content
Browse By Category
(Streamline Your Design Process and save time)Most Clicked Content
False Ceiling Design 14'x14' - CAD Plan and Sections
Download this detailed CAD block of a false ceiling designed for a 14' ...
Home Office Interior Design CAD Drawings
Explore this detailed AutoCAD drawing of a home office design measurin ...
Sewage Treatment Construction CAD- Full Layout & Equipment Specs
This AutoCAD DWG drawing provides comprehensive details for sewage tre ...
Double Shutter Wardrobe Design DWG Detail
Download this detailed AutoCAD drawing of a wardrobe designed with dim ...
Meeting Room Layout and Ceiling Design in AutoCAD
Download this detailed AutoCAD drawing of a meeting room measuring 10' ...
Hotel Guest Room CAD Layout - Free AutoCAD Download
Download the detailed AutoCAD drawing of a Hotel Guest Room, available ...






























