×
30'x60' Duplex House Plans - Free Autocad DWG Download
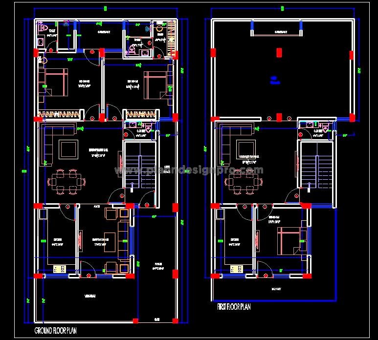
Download these free Autocad house plans in DWG format, showcasing the space planning of a duplex house on a 30'x60' plot. This design includes a comprehensive layout for both floors.
Ground Floor: Designed as a 4-bedroom house with 1 car parking space. This floor provides ample living space and practical features for a comfortable lifestyle.
First Floor: Features 4 bedrooms, a central lounge area, and an open terrace, perfect for relaxation and outdoor activities.
The drawing includes a complete architectural layout plan, ideal for architects and designers looking for detailed and practical duplex house designs.
Ground Floor: Designed as a 4-bedroom house with 1 car parking space. This floor provides ample living space and practical features for a comfortable lifestyle.
First Floor: Features 4 bedrooms, a central lounge area, and an open terrace, perfect for relaxation and outdoor activities.
The drawing includes a complete architectural layout plan, ideal for architects and designers looking for detailed and practical duplex house designs.
Product Details
| Category | Residential Spaces |
| Software | Autocad DWG |
| File ID | 930 |
| Type | Free |
Related Content
Browse By Category
(Streamline Your Design Process and save time)Most Clicked Content
Jewelry Shop Facade Design - Elevation in AutoCAD DWG
This Autocad drawing file features a detailed design for a modern Jewe ...
Small Bathroom Layout Free CAD Design
Download this free AutoCAD drawing of a toilet measuring 2700 x 1500 m ...
Free CAD Block- Reception Desk, Counter & Executive Table
This collection of free CAD blocks offers various 2D furniture designs ...
Window Grill Design CAD Blocks- 6 Contemporary Patterns
Discover and download CAD blocks of modern Window Grill or Jali Design ...
Free Furniture CAD Blocks- Workstations & Office Tables
This collection of free CAD blocks offers a variety of 2D furniture DW ...
Home Bar Counter with Bottle Display CAD Drawing
Download this detailed AutoCAD drawing of a bar counter featuring two ...
.jpg)




.jpg)
























-Complete-Working-Drawing-Details.jpg)